產品簡介
高效直線振動篩的篩箱運動軌跡近似為直線,采用雙振動電機自同步拖動,是一種通用篩分設備。高效直線振動篩的篩機的動力裝置有振動電機直接驅動和普通電機通過聯軸器帶動激振器間接驅動兩種形式,高效直線振動篩可滿足不同環境需要。
產品結構
高效直線振動篩的篩面有金屬編織網、棒條、鑄造、焊接、沖孔等多種形式,篩面既有單層結構也可多層布置,可滿足不同篩分作業要求。
高效直線振動篩分單層和雙層;篩箱分敞開型和封閉型;篩網分為鋼絲編織篩網、焊接篩網、調縫篩板、初梳齒篩板和其他特殊材料篩板。可根據所篩物料不同選用篩網,篩網由小塊拼裝,且更換簡便。
特點及用途

型號編制說明

高效重型振動篩的分類及用途
(1)敝開型(ZSG-□×□)為座式,無防塵蓋板,結構,用于大篩分能力、無粉塵污染的顆粒物料的篩分作業(2)封閉型(ZSGB-□×□)為座式,全封閉結構,用于大處理量、有粉塵污染的顆粒物料的篩分作業。
主要技術特性
| ZSG-10×20 | ZSG-10×30 | ZSG-15×30 | ZSG-15×40 | ZSG-15×50 | ZSG-20×50 | ZSG-20×60 | ZSG-20×70 | ZSG-20×80 | |||
篩分能力(t/h) | 10-200 | 15-250 | 20-350 | 25-400 | 30-500 | 50-500 | 60-600 | 65-600 | 65-600 | |||
給料料度(mm) | ≤250 | ≤350 | ≤400 | ≤400 | ≤400 | ≤400 | ≤400 | ≤400 | ≤400 | |||
篩分面積(m2) | 2 | 3 | 4.5 | 6 | 7.5 | 10 | 12 | 14 | 16 | |||
篩孔尺寸(mm) | 3-50 | 3-150 | 3-200 | 3-200 | 3-200 | 3-200 | 3-200 | 3-200 | 3-200 | |||
振動頻率r/min | 960 | 960 | 960 | 960 | 960 | 960 | 720 | 720 | 720 | |||
雙振幅(mm) | 8-12 | 8-12 | 8-12 | 6-10 | 6-10 | 6-10 | 10-15 | 8-12 | 8-12 | |||
電機功率(kw) | 2.2×2 | 2.2×2 | 3.7×2 | 3.7×2 | 5.5×2 | 5.5×2 | 7.5×2 | 7.5×2 | 7.5×2 | |||
供電電壓(v) | 380 | 380 | 380 | 380 | 380 | 380 | 380 | 380 | 380 | |||
總重量 | 單層篩 | 2300 | 3300 | 5100 | 6800 | 8450 | 11100 | 13800 | 17500 | 21820 | ||
雙層篩 | 2500 | 3600 | 5500 | 7300 | 9100 | 12000 | 14900 | 19800 | 23400 | |||
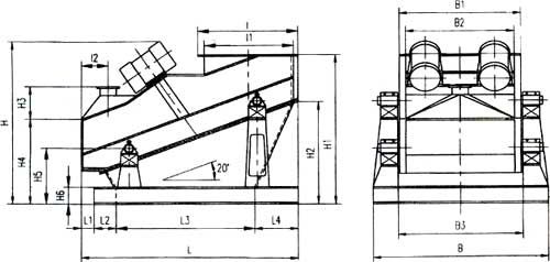
主要外形及安裝尺寸
(1)ZSG系列單層篩外形及安裝尺寸。注:下圖為封閉式振動篩,敞開式無進料口、除塵口,亦無I、I1、I2、H3之尺寸。
型號 | ZSGB-10×20 | ZSGB-10×30 | ZSGB-15×30 | ZSGB-15×40 | ZSGB-15×50 | ZSGB-20×50 | ZSGB-20×60 | ZSGB-20×70 | ZSGB-20×18 |
L | 2000 | 3000 | 3000 | 4000 | 500 | 5000 | 6000 | 7000 | 8000 |
L1 | 119 | 156 | 156 | 225 | 225 | 225 | 225 | 225 | 225 |
L2 | 200 | 240 | 240 | 240 | 240 | 240 | 240 | 240 | 240 |
L3 | 1278 | 1991 | 1991 | 2712 | 3502 | 3502 | 4292 | 5082 | 5872 |
L4 | 403 | 613 | 613 | 823 | 1033 | 1033 | 1243 | 1453 | 1663 |
B | 1620 | 1620 | 2120 | 2120 | 2120 | 2620 | 2620 | 2620 | 2620 |
B1 | 1120 | 1120 | 1620 | 1620 | 1620 | 2120 | 2120 | 2120 | 2120 |
B2 | 1000 | 1000 | 1500 | 1500 | 1500 | 2000 | 2000 | 2000 | 2000 |
B3 | 1000 | 1000 | 1500 | 1500 | 1500 | 2000 | 2000 | 2000 | 2000 |
H | 1584 | 2019 | 2019 | 2422 | 2465 | 2465 | 2610 | 2968 | 3493 |
H1 | 1384 | 1769 | 1769 | 2172 | 2537 | 2537 | 2932 | 3295 | 3659 |
H2 | 948 | 1262 | 1262 | 1626 | 1990 | 1990 | 2353 | 2717 | 3081 |
H3 | 300 | 350 | 350 | 450 | 450 | 450 | 450 | 450 | 450 |
H4 | 789 | 860 | 860 | 900 | 900 | 931 | 930 | 931 | 931 |
H5 | 400 | 434 | 434 | 474 | 747 | 505 | 505 | 505 | 505 |
H6 | 150 | 200 | 200 | 200 | 200 | 200 | 200 | 200 | 200 |
I | 920 | 1120 | 1220 | 1320 | 1320 | 1320 | 1320 | 1320 | 1320 |
I1 | 800 | 1000 | 1000 | 1200 | 1200 | 1200 | 1200 | 1200 | 1200 |
I2 | 250 | 350 | 350 | 450 | 500 | 500 | 500 | 500 | 500 |
Ф | 300 | 300 | 350 | 350 | 400 | 400 | 400 | 400 | 400 |